Spring 2020

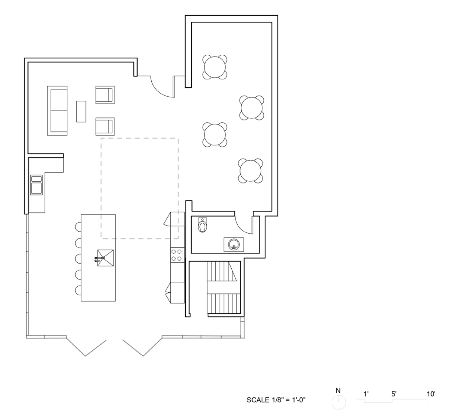
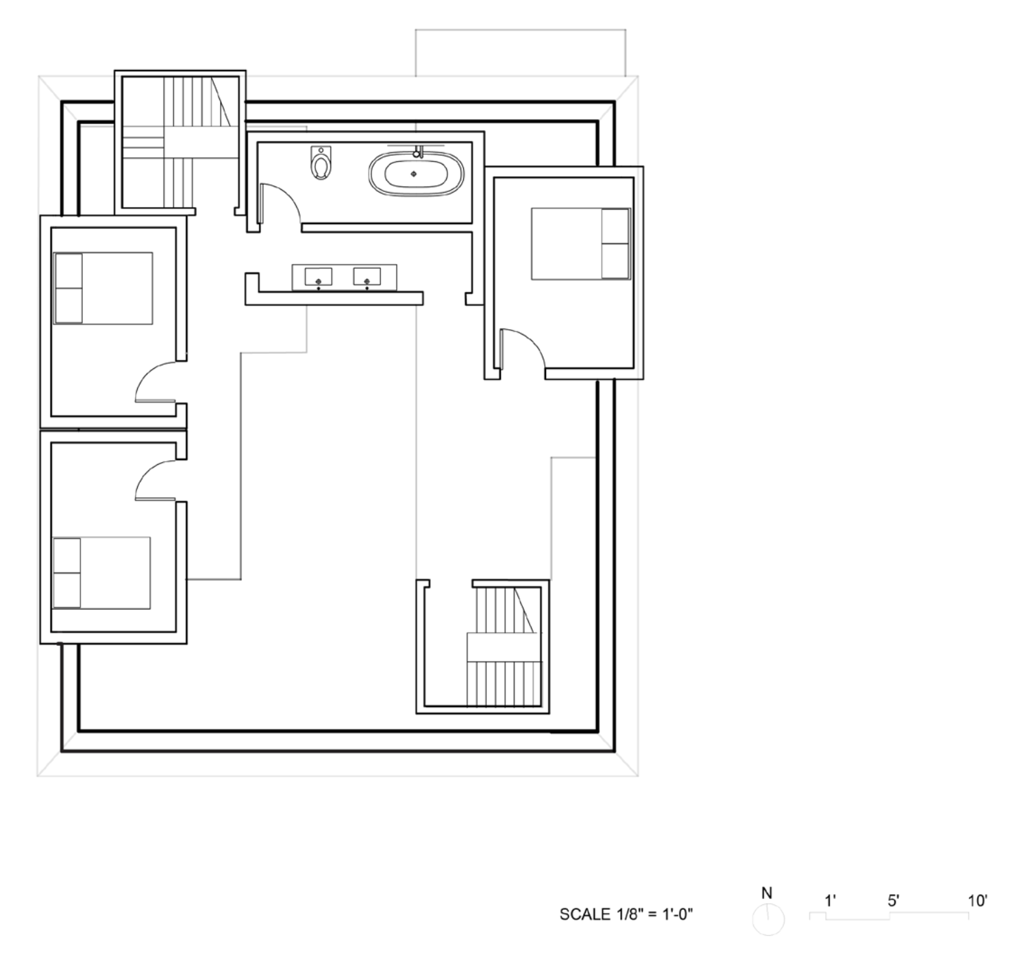
The Chef’s Cooperative was a project completed in Brown’s Introductory Architectural Design Studio class, focused on teaching the principles of spatial logic and design. Working within the parameters of a site in Providence, this project was designed to be a space where small business owners, particularly of restaurants and bakeries, in Providence could live and work together, with an emphasis on the relationships between food and community. I wanted to include plenty of gathering spaces, but also cavities in the structure where sound, light, and smells could waft upwards and unify the space while still allowing for ample privacy.

Previous
Previous

Urban Forestry Center

Next
Next

Architectural Projections